來源:合肥國徽裝飾 發布日期:2020-11-06 瀏覽次數:11115 次
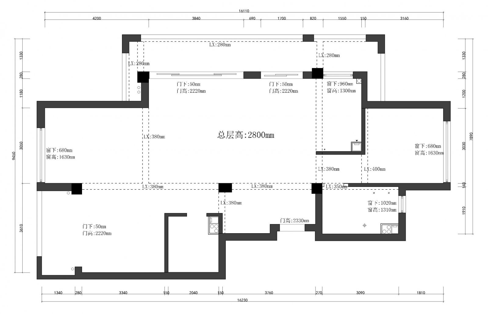
設計師:龔雪 面積:平 戶型:兩室兩廳 風格:中式風格














· END ·
合肥國徽裝飾工程有限公司是一家專業裝飾設計、施工為一體的高品質國家級裝飾企業機構。始終致力于高端的住宅、別墅、商業空間、辦公空間的設計與施工,以它領先業界的設計水準,獨特的施工管理規范及不斷完善的高品質服務,歷經數載的穩健發展正悄無聲息地改變著合肥及周邊地區廣大業主們的居家生活方式。公司崇尚新穎設計、精品施工、一站式服務,努力打造個性化的裝飾品牌。
公司理念:以客戶為中心,以質量為核心,客戶的始終滿意,是我們的執著追求! 公司網址:m.pk9982.com 公司電話:0551-65566632 公司地址:安徽省合肥市蜀山區黃山路與岳西路交口匯峰大廈2111室
